Project Description
Résidence Athéna
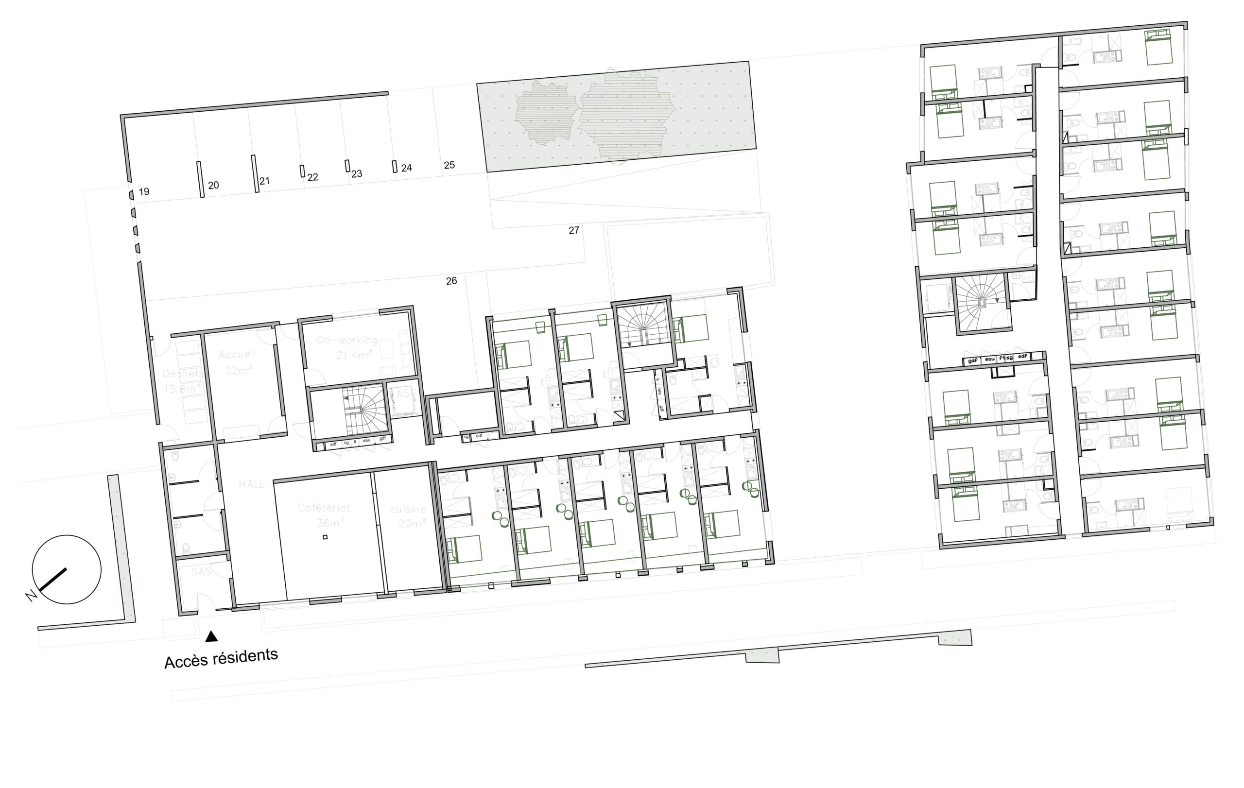
34 logements collectifs
ROUBAIX
Maître d’ouvrage : EDELIS PROMOTION
SP : 2088 m²
Label : CERQUAL – NF HABITAT / RT2012 – 10%
Coût du bâtiment : Chantier / 2 845 000€HT
Ratio : 1538€ HT / shab.
Avancement : Livré en juillet 2017
Mission : MOP complète + OPC

Le projet se décline en deux ilots autonomes qui se déploient le long de la rue l’alma et forme un front Nord-Ouest face à la voie ferrée.
Le projet s’implante en reprenant les alignements définis au schéma d’aménagement général avec pour langage commun la création d’un ouvrage de sous-bassement sur RDC qui compose avec la pente le long de la rue de l’alma. Le traitement unitaire de ce mur (béton matricé), sa porosité (percements séquencés et grilles), sa végétalisation (insertion en pied de plantes grimpantes parfumées et fleuris) la distinction des entrées (véhicules et piétons) par une signalétique intégrée, seront autant d’éléments soigneusement traités pour favoriser le rapport harmonieux au nouvel environnement (mail plantations, promenade …) profitable aux résidents et au voisinage.
C’est derrière ce soubassement que se déploie le parc de stationnement qui s’adapte aux variations du sol. Dès lors, s’élève sur chacun des ilots, des séquences bâtis, qui révèlent un profil urbain qui se joue de l’étirement de long de la rue de l’alma et de sa pente, formant des creux, des retournements, des terrasses, des balcons, de toits habités … à la radicalité du front bâti nous avons préféré le cadre de vue, pour un meilleur cadre de vie, offert au plus grand nombre. Cette composition tutoie son environnement par le jeu d’une écriture architecturale qui emprunte à son contexte un langage commun, par ses formes et matériaux dans un déploiement contemporain.
Le projet interpelle, au travers d’une écriture sensible, le désir d’être là, d’y habiter, d’y vivre et de partager. Il n’affiche rien d’ostentatoire ni ne sent obligé sinon que d’être le fragment d’une histoire nouvelle qui est en train de s’écrire sur une ville qui n’a de cesse de se renouvelée de se réinventée




Principales caractéristiques :
– 3 Bâtiments r+2 et r+4
– Parking en rez de chaussée
– Ascenseur
– Murs béton et isolant par l’intérieur
– Derniers niveaux en ossature bois
– Menuiseries en PVC
– Chauffage individuel gaz
– Ventilation collective
