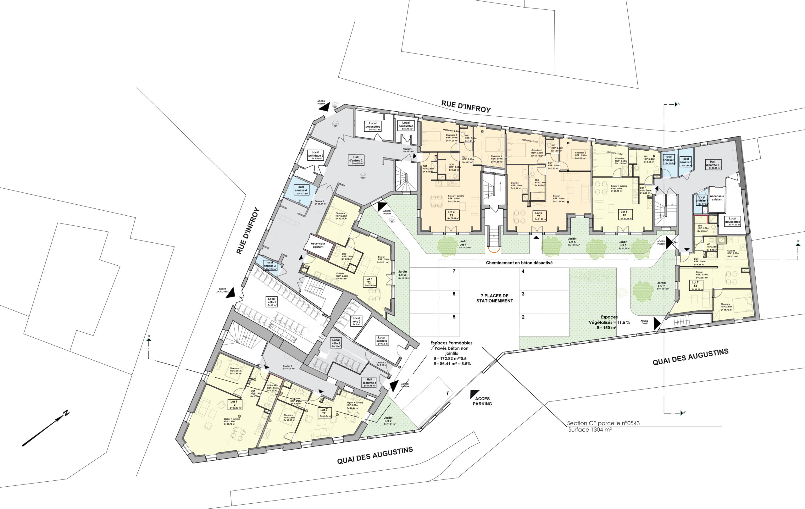
Project Description
Moulin des Augustins
DOUAI
Maître d’ouvrage : BEAUREGARD
Mission : Etudes (PC – PDV)
Architecte : Bureau Volant, Architecte
Surface habitable : 2142m²
Montant des travaux :
Avancement : Etudes en cours

Le projet consiste en le réaménagement de deux bâtiments :
L’ancien moulin du quai des Augustins et un ancien foyer d’hébergement en 40 logements de standing.






